Zum Hauptinhalt springen

Leben und gut Wohnen in Speyer

Notfall-Hotline: 0160-7155771
(Außerhalb Geschäftszeiten)

Während wir mit den Bauarbeiten in der Albert-Einstein-Straße auf der Zielgeraden sind, planen wir schon das nächste Bauprojekt für Wohnungssuchende.

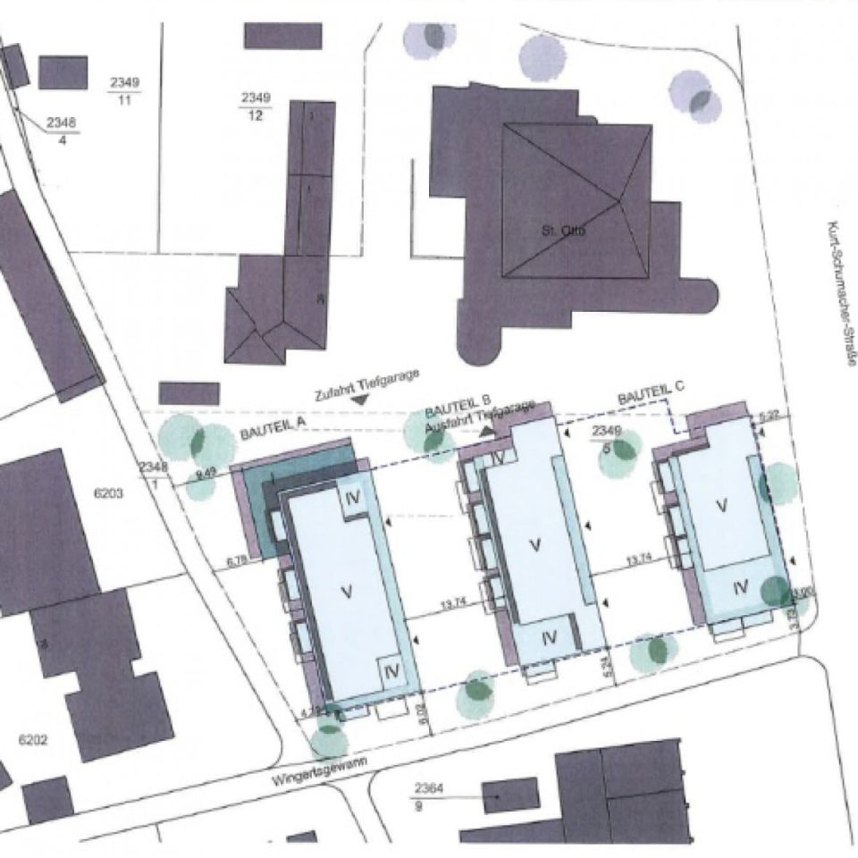
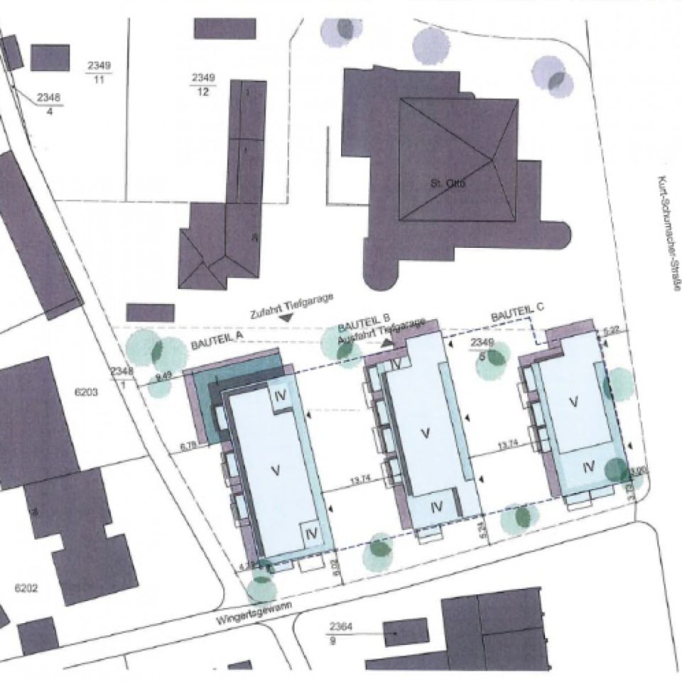
Drei Mehrfamilienhäuser mit insgesamt etwa 50 Wohnungen und einer Tiefgarage sollen in Speyer West entstehen – direkt neben der katholischen Kirche St. Otto. Rund 18 Millionen Euro werden wir dafür investieren. Mit der Dompfarrei Pax Christi konnten wir bereits einen Vorvertrag über den Kauf des Grundstücks abschließen.